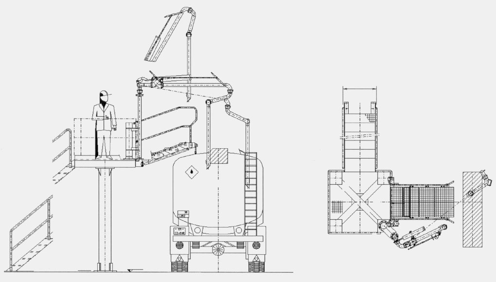
BRAÇOS DE CARREGAMENTO TOP (POR CIMA) E0806 - E0807 / E0814 - E0815

Este tipo de braço de carregamento é especialmente projetado para carregamento pelo topo de caminhões tanque rodoviários ou ferroviários usando a boca de visita. Braço de carregamento tem um alcance variável e é adequado para aplicações em que a boca de visita não está precisamente posicionada.

Devido ao projeto robusto e de alta qualidade das juntas articuladas e do balanceamento preciso do braço de carregamento, seu manuseio torna-se fácil e com pouco esforço.

INFORMAÇÕES TÉCNICAS:

DESENHO DO ENVELOPE