BRAÇOS DE CARREGAMENTO TOP (POR CIMA) E0800 - E0803 / E0808 - E0811

Este tipo de braço de carregamento é especialmente projetado para carregar produtos de petróleo.

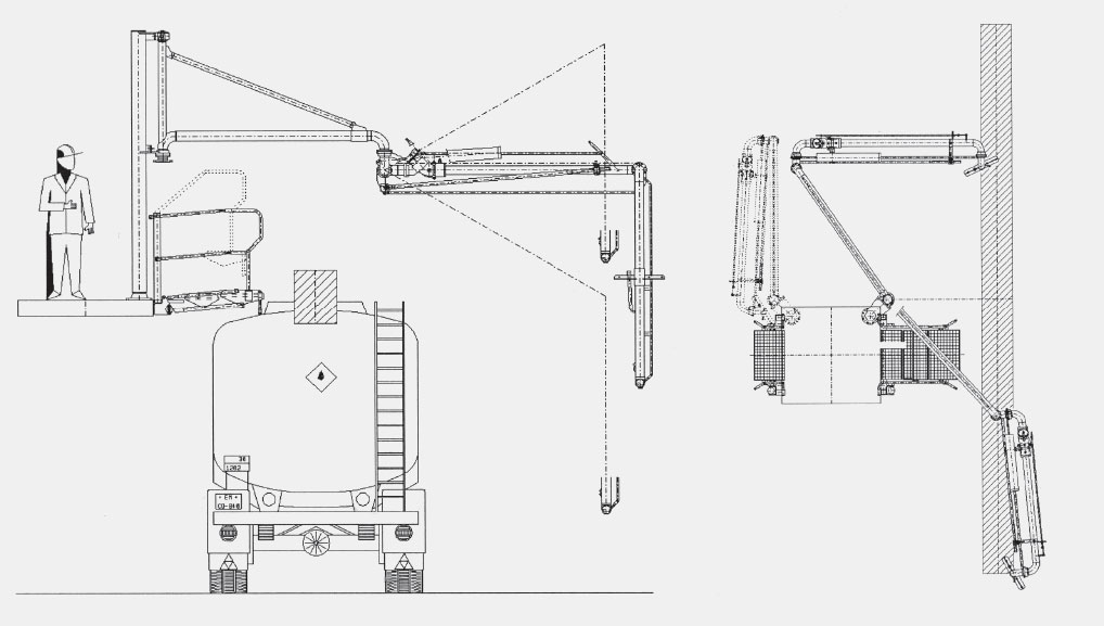
Ele é adequado para carregamento superior de caminhões tanque rodoviários ou ferroviários usando a boca de visita. Braço de carregamento tem longo alcance e é adequado para aplicações em que a boca de visita não pode ser precisamente posicionada.

Devido ao projeto robusto e de alta qualidade das juntas articuladas e do balanceamento preciso do braço de carregamento, seu manuseio torna-se fácil e com pouco esforço.

INFORMAÇÕES TÉCNICAS:

DESENHO DO ENVELOPE