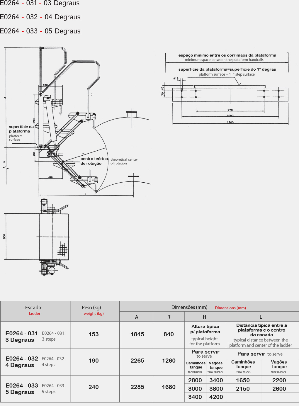
ESCADA PANTOGRÁFICA


Escada Pantográfica construída em aço carbono com 3, 4 ou 5 degraus utilizada em plataforma de carregamento para facilitar o acesso ao caminhão tanque durante o enchimento.

Características:
Estrutura de aço carbono;
Degraus anti-derrapantes galvanizados a quente;
Corrimãos laterais de proteção;
Buchas das articulações em nylon;
Parafusos e porcas de aço.



Alumínio:
A EMCO IKE oferece a opção de produção das escadas pantográficas em alumínio. Consulte nossa equipe comercial para maiores informações.

INFORMAÇÕES TÉCNICAS: